昆明理工大學2020年碩士研究生招生入學考試試題(A卷)
考試科目代碼:355 考試科目名稱 :建筑學基礎
考生答題須知
1. 所有題目(包括填空、選擇、圖表等類型題目)答題答案必須做在考點發給的答題紙上,做在本試題冊上無效。請考生務必在答題紙上寫清題號。
2. 評卷時不評閱本試題冊,答題如有做在本試題冊上而影響成績的,后果由考生自己負責。
3. 答題時一律使用藍、黑色墨水筆或圓珠筆作答(畫圖可用鉛筆),用其它筆答題不給分。
4. 答題時不準使用涂改液等具有明顯標記的涂改用品。
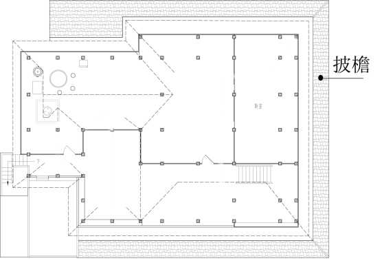
| 1、名詞與概念解釋(40分) (1)雅典憲章(5分) (2)三朝五門制(5分) (3)粗野主義(5分) (4)建筑物之間防火間距計算(5分) (5)居住建筑的無障礙設計要點(5分) (6)建筑結構所受的作用力,可以按照不同的標準劃分成多種類型,按照“受力方向”可劃分為垂直荷載、水平荷載和其它荷載;如果按“作用時間”劃分,會有哪些類型?(5分) (7)門窗的五大性能指標是什么?(5分) (8)衛生間樓地面的構造要點有哪些?(5分) 2、簡答題(按題目要求進行論述和圖解)(40分) (1)試論述柯布西耶在《走向新建筑》一書中的主要建筑觀點(10分)。 (2)以高層居住建筑剪力墻結構為例,選擇保溫層材料為EPS板(膨脹型聚苯乙烯泡沫塑料板),配以圖示說明墻體外保溫是如何解決的?(10分) (3)傳統歇山屋面又稱“九脊頂”,其外觀類似硬山頂與廡殿頂的結合。云南傣族傳統民居也有某些地區采用該做法,區別在于正脊稍短,下有披檐。試根據提示簡要繪制補充完成單個傣族民居的屋頂平面圖和屋頂正立面圖,如圖(一)(繪圖在答題紙上單獨完成)。(10分)某傣族民居采用歇山屋面做法,其屋頂平面外輪廓不規整,如圖(二),試根據上述提示,簡要繪制完成屋頂平面圖和屋頂正立面圖(以上兩個圖屋頂均為同坡屋面,正立面角度如上圖提示,繪圖在答題紙上單獨完成)。(10分) |
昆明理工大學2020年碩士研究生招生入學考試試題
![]() 圖片(一) ![]() 圖片(二) |
昆明理工大學2020年碩士研究生招生入學考試試題
| 三、論述題(70分) (1)林徽因在《論中國建筑之幾個特征》中認為:“中國建筑的基本特征在于它的框架結構,這一點與西方的哥德式建筑和現代建筑非常相似”。這點和西方古典建筑形成的基礎是砌筑體系,圍護和結構合一不同。而我國傳統建筑從單體到群體組織上,存在所謂的“家國同構”現象,即不論是在單體的居住建筑,還是在群體組織上,矩形空間的重復和組合構成傳統建筑空間的基本特征,試根據上述資料,從結構圍護關系——空間組合——空間文化關系的角度出發,簡要論述“家國同構”現象形成的可能和原因。(25分) (4)以“瓦屋頂”構造技術變化為例,分析木結構體系的坡屋頂和鋼筋混凝土坡屋頂的最大區別是什么?首先圖示說明傳統木結構體系坡屋頂的瓦屋面構造順序;隨著現代建筑材料和技術的改良,屋頂加入保溫和防水要求后,請圖示說明改良過的坡屋頂瓦屋面的構造順序;最后請圖示說明混凝土屋面的坡屋頂瓦屋面的構造順序(20分)。 (3)近十年以來,“建筑實踐在鄉村”正作為一個社會性事件被廣泛關注和討論。尤其是當代建筑學專業媒體聚焦下的傳統鄉村建設問題被注入了社會性、倫理、人道主義等人文社會學科向度,鄉建問題變得更加復雜和多元。請立足中國鄉村振興的時代背景,結合當代中國鄉村實踐典型案例,試闡釋未來中國鄉村建設活動中,建筑學作為一種參與主體,介入鄉建的主要模式與活化更新的有效策略和方法。(25分) |
原文標題:昆明理工大學2020年碩士研究生入學考試自命題科目試題
原文鏈接:http://yjs.kmust.edu.cn/info/1016/2981.htm
原文鏈接:http://yjs.kmust.edu.cn/info/1016/2981.htm
以上就是小編整理的“考研真題:昆明理工大學355建筑學基礎2020年碩士研究生入學考試自命題科目試題”的全部內容!更多真題資料請關注“考研專業課真題”欄目!祝考研成功!

